Passivhaus Nordhemmern

Neubau eines Doppelhauses mit Hebammenpraxis
  • Nutzung
    Gewerbe
    Wohnen
  • Baujahr
    2008
  • Wohn- und Nutzfläche
    287 m²
  • Besonderheiten
    Passivhaus

Wohnraum trifft Arbeitswelt

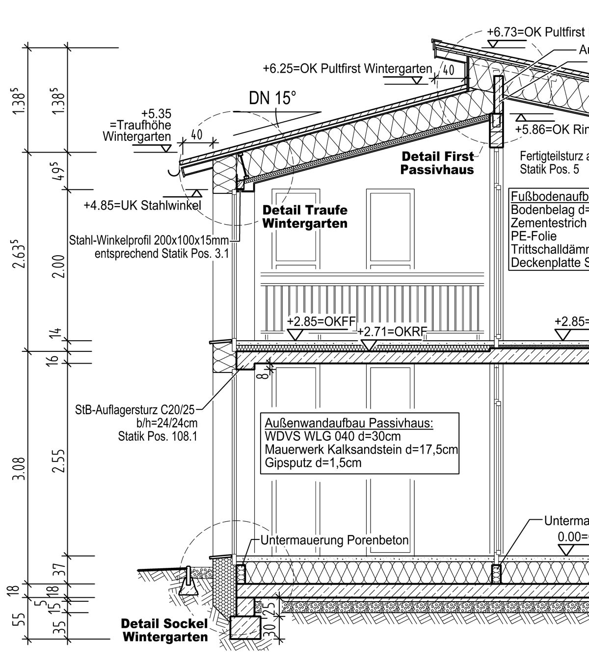
Mit dem Neubau eines Doppelhauses plus Hebammenpraxis wurde 2008 ein zukunftsorientiertes Ensemble geschaffen, das Wohnen und Arbeiten funktional und gestalterisch verbindet. Die beiden Passivhäuser orientieren sich mit großzügigen zweigeschossigen Wintergärten nach Süden zum Garten hin, während die Praxisräume zur nördlich gelegenen Straße ausgerichtet sind. Flankiert von Carports und Garagen entsteht zur Durchgangsstraße eine ruhige, eingeschossige Front, die die Wohnbereiche abschirmt.

Offene Räume, durchdachte Energieeffizienz

Die Wohnhäuser wurden als Massivbauten mit einer Dachkonstruktion aus Holz-Doppelstegträgern geplant – ideal für die nötige Dämmstärke im Passivhausstandard. Eine Lüftungsanlage mit Wärmerückgewinnung sorgt für ein konstant angenehmes Raumklima. Die Räume öffnen sich bis unter das Dach und schaffen eine lichte, großzügige Atmosphäre. So entstand ein Ensemble, das energetische Effizienz, klare Struktur und zeitgemäße Nutzung überzeugend vereint. 

Call Now Button